With house prices climbing relentlessly across Spain, many buyers are looking beyond traditional bricks and mortar.
Prefabricated homes, once associated with weekend retreats, are increasingly seen as a realistic, year-round housing solution that offers space, comfort and good design without an eye-watering budget.
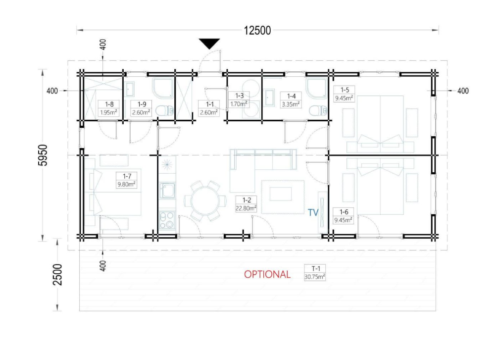
One model in particular has become a standout option: AGNES, a timber home with three bedrooms, a generous layout and an attractive price tag, at least during Black Friday offer, when it is available for €32,919.
Designed to maximise natural light, AGNES, produced by Pineca, has gained traction among families seeking an affordable, sustainable home adaptable to different lifestyles.
One of the model’s main draws is the use of glazing, with four double glass doors opening directly onto a 30m2 terrace, creating a seamless connection between indoor and outdoor spaces.
Residents can step outside from almost any room, sip morning coffee in the sun or simply enjoy uninterrupted views – depending on where they choose to erect the home.


The extensive glass surfaces also keep the interior bright and welcoming throughout the year.
Inside, the layout is built with families in mind, boasting three bedrooms as well as two additional smaller rooms, ideal for walk-in wardrobes, storage areas or home offices.
With space for four or more people, each occupant can enjoy privacy while still sharing a well-organised home.
The central living room, measuring 23m2, forms the social hub, bringing together the open-plan kitchen, dining area and lounge.
AGNES is constructed from natural Nordic pine or certified Scandinavian spruce, both long-lasting, environmentally responsible materials.
Basic insulation is provided throughout the structure and makes the home suitable for all seasons without excessive energy use.
The 50mm insulation in the roof, floor and walls helps retain warmth in winter and prevents overheating during summer.
Externally, the house measures 12.5m x 5.95m, offering a total of 75m2 of living space.
The roof, made from 20mm tongue-and-groove boards with 50mm insulation, has a 16-degree pitch to improve rainwater drainage and add a stylish architectural finish.


Sounds great, but what about planning in Spain?